Sold $2,500,000
View Photos

Architect Designed Single Level Living - Supreme Location

13 Thomson Road, CLAREMONT WA 6010

332

Designed by celebrated architect Brian Klopper, this Federation-style home is a rare opportunity you will not want to miss.

Quality built over a single level with high ceilings and a north-facing backyard, and set on a cul-de-sac in Claremont’s coveted river precinct, the location is superb.

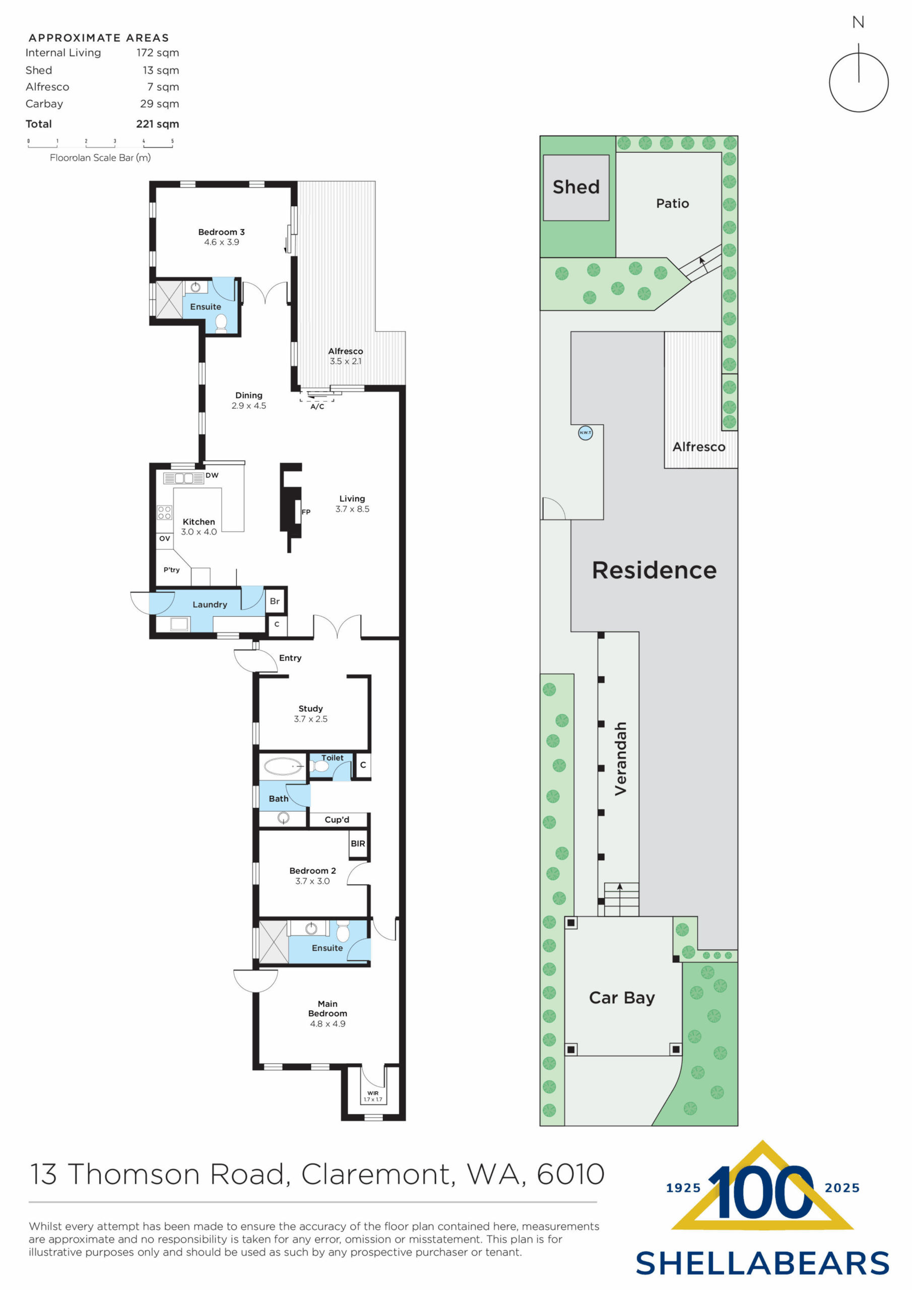
The original refined residence underwent an extension in 2010 when the kitchen and bathrooms were renovated to a high standard. There are two different Master bedroom suites, plus further accommodation for a larger family. The large open plan living space flows out to a lovely north-facing entertaining deck.

Set on the high side of the road on a 509sqm block, this home will suit you if you are looking to downsize from a larger property, while it’s also big enough to accommodate a growing family who will enjoy its brilliant proximity to amenities.

On a quiet street with little passing traffic, this home is perfectly located within walking distance of Claremont Park, schools, shops and the river at Freshwater Bay.

Features:
– North-facing backyard
– 509sqm block
– Quality architect-designed build
– Extended and renovated in 2010
– High ceilings
– Open plan living
– Kitchen with stone benchtops
– AEG oven and induction cooktop
– Entertaining deck
– 3 spacious bedrooms
– 3 immaculate bathrooms
– Fireplace (gas ready)
– Lots of storage
– Reverse-cycle split system air-conditioning
– Solar panels (5 kW inverter system)
– Established gardens
– Garden shed
– Double carport
– Walk to cafes, schools, the river & the Claremont Quarter

Rates (approximate):
Council: $2,839 pa
Water: $2,256 pa

Video

3D Tour

Home Opens

There are no home opens scheduled at this time Contact us for a private inspection

    Claremont

    10 minutes from the CBD, 5 from the sea, this leafy suburb is known for its eclectic shopping and fine dining.

    View Suburb Profile

    Floorplan

    Property details

    509m²

    Download Floorplan

    Contact the agent

    Get more information about this property

      Callback Open Times Brochure Info Via Email