Sold $556,000
View Photos

Treetop Sanctuary - Exclusive Claremont

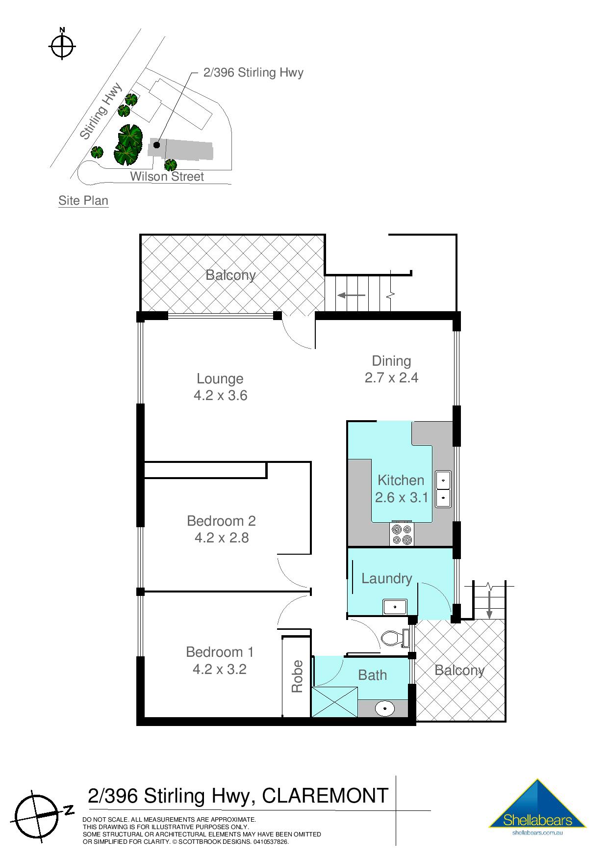
2/396 Stirling Highway, CLAREMONT WA 6010

211

ENTRY OFF WILSON STREET

A stunning renovation with big rooms and high ceilings means there’s nothing to do but move in and enjoy this gorgeous apartment in Claremont’s Blue Ribbon River Precinct with spectacular views to the Cottesloe pines & the ocean.
An exceptional opportunity for singles, couples, small families, investors, or as a city base; this delightful first floor apartment is light and bright throughout, with a huge open-plan dining and living room over-looked by a sun-drenched kitchen with waterfall Corian benchtops and Smeg oven.
The king-sized Master bedroom boasts a wall of robes. A generous second bedroom, a beautifully renovated bathroom, separate toilet, and large laundry complete the internal accommodation, while there is also a lovely entertaining verandah with space for a BBQ.
Completely re-wired and re-plumbed, this wonderful apartment offers a hassle-free way to enjoy everything that’s good about Claremont, with proximity to the Claremont Quarter, Cottesloe shops, Premier Schools, the river, the beach and transport.

FEATURES:
– Internal living 80sqm, plus 2 balconies, plus car port 15.5sqm
– Well-maintained complex of only 18
– Beautifully renovated
– Neutral colour-scheme
– Close to river, beach, shopping, and premier schools
– Completely re-wired & re-plumbed
– Stunning Corian kitchen with Smeg oven
– 2 spacious bedrooms (Master with BIR)
– Renovated bathroom
– Open plan living
– 2 separate verandahs
– Large separate laundry
– Surrounded by established gardens
– Single carport

Home Opens

There are no home opens scheduled at this time Contact us for a private inspection

    Claremont

    10 minutes from the CBD, 5 from the sea, this leafy suburb is known for its eclectic shopping and fine dining.

    View Suburb Profile

    Floorplan

    Property details

    Download Floorplan

    Contact the agent

    Get more information about this property

      Callback Open Times Brochure Info Via Email