Under Offer
View Photos

Home Open Cancelled.

21B Bay Road, CLAREMONT WA 6010

322

Elegant Design, River Precinct Downsizer.

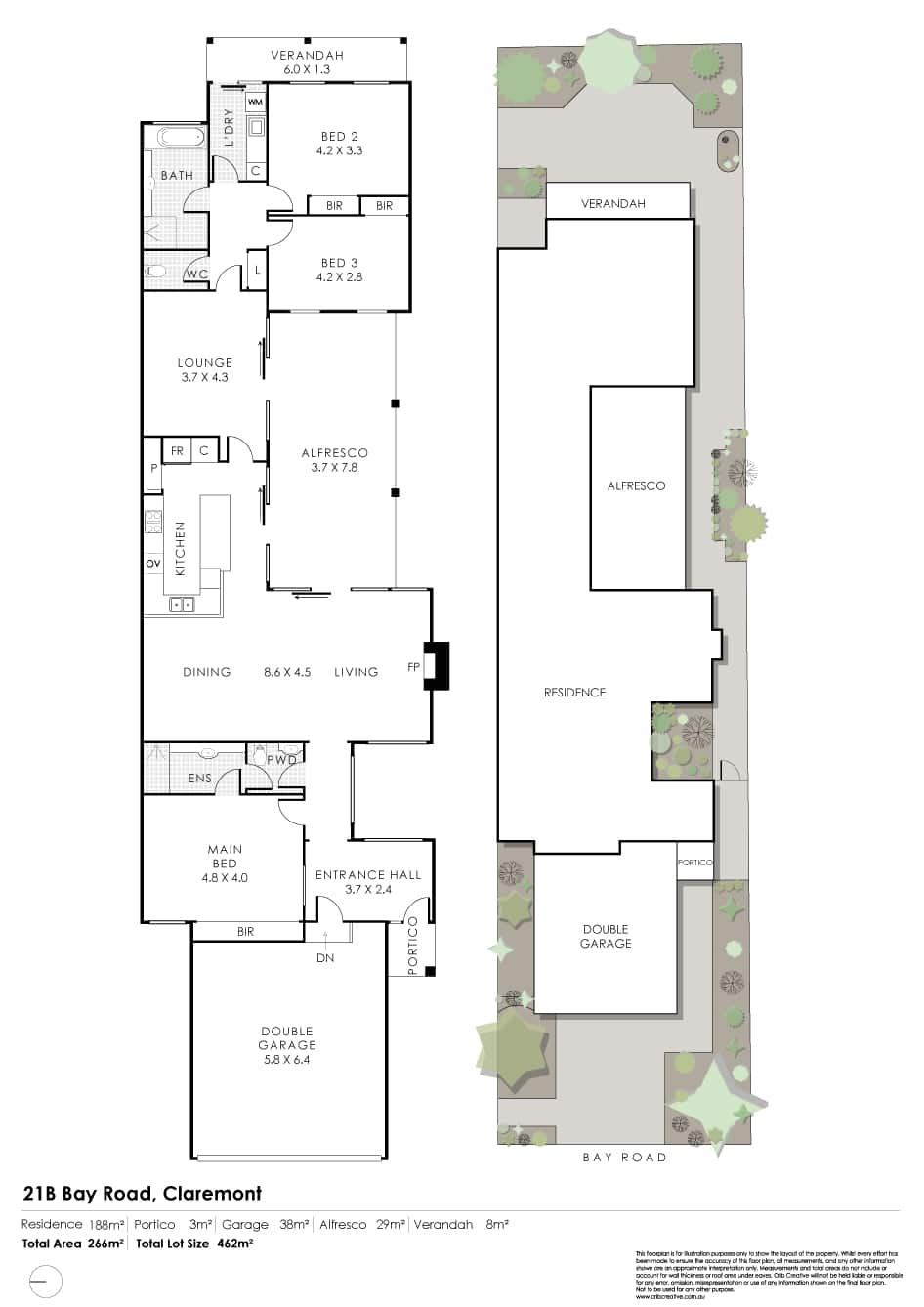
Innovative architectural design defines this private and secure SINGLE LEVEL pavilion-style residence, where living rooms overlook an idyllic courtyard and garden retreat. Features include high ceilings, zoned open plan living spaces that connect and provide privacy as needed, well suited to downsizers or small families.

Conveniences such as a double lock up garage with internal entry, ducted air conditioning complement spacious contemporary interiors attracting natural light. A stylish centrally kitchen comes with a stone benchtop, premium appliance linking the two separate living zones including lounge, dining and separate TV (library) all have access to the outdoor “sanctuary style” central undercover sun terrace.

Three bedrooms include the primary bedroom with built in robes, ensuite, while a second bathroom serves the remaining two robed bedrooms. Includes a dedicated laundry, in this tranquil location only minutes to the Swan River foreshore, with College Park and Claremont’s shopping, restaurant, boutique and transport hub easily accessible.

For more information, contact Exclusive Selling Agent MARK ANDERSON 0411 645 174

Home Opens

There are no home opens scheduled at this time Contact us for a private inspection

    Claremont

    10 minutes from the CBD, 5 from the sea, this leafy suburb is known for its eclectic shopping and fine dining.

    View Suburb Profile

    Floorplan

    Property details

    462m²

    Download Floorplan

    Contact the agent

    Get more information about this property

      Callback Open Times Brochure Info Via Email