Sold
View Photos

Doorstep of Freshwater Bay

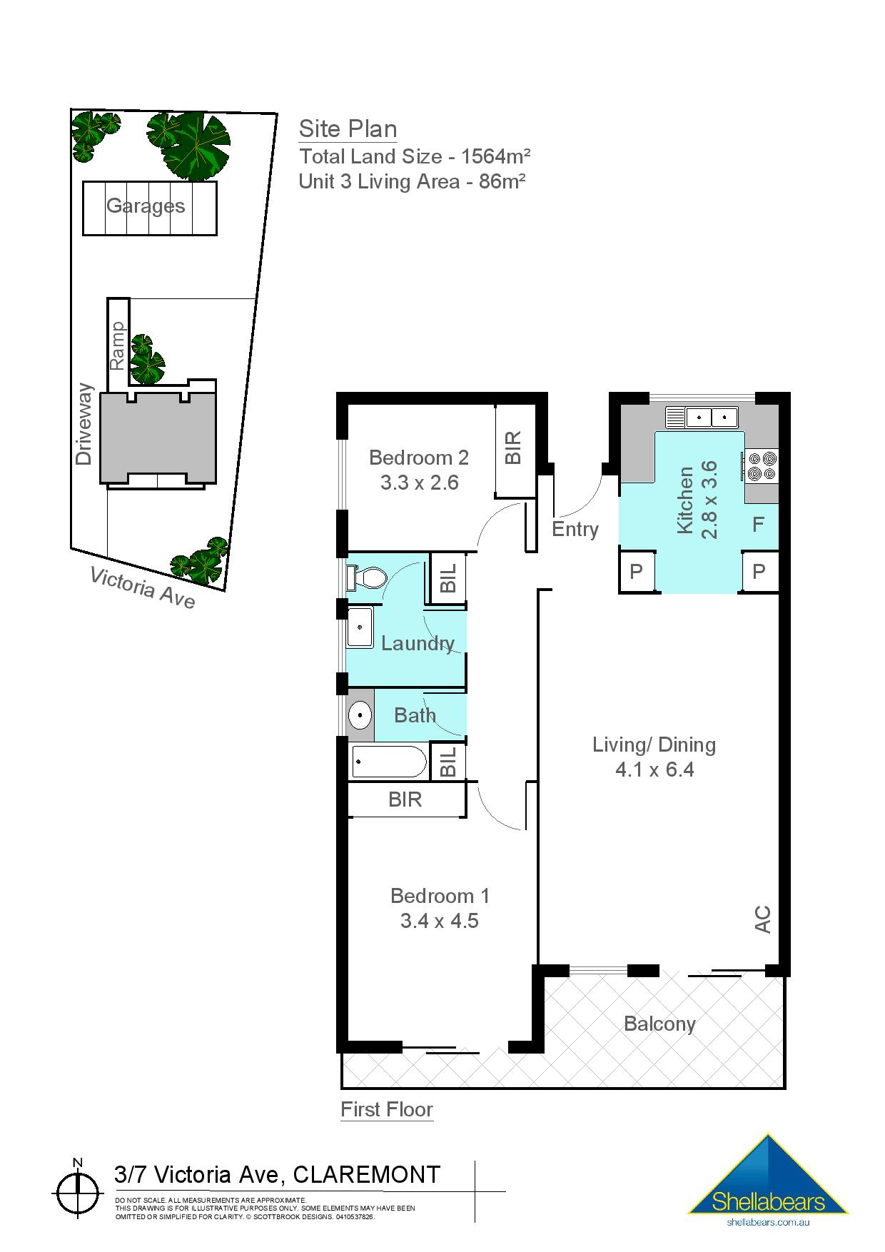
3/7 Victoria Avenue, CLAREMONT WA 6010

211

Suitable for buyers who do not want stairs!

Light and bright and ready to move in! The lovely river views and the short stroll to the Freshwater Bay foreshore are what you will love about this updated apartment.

Located in a prized pocket of Claremont’s river precinct, close to the Claremont Quarter, parkland, schools and transport, this private and secure unit is in a small group of only 6 apartments which share a huge 1,564sqm of land.

Features:

• Lovely river views
• Ramp access, therefore no stairs
• Small group of 6 apartments
• 1,564sqm of strata-owned land
• Open plan living
• 2 spacious bedrooms (BIRs)
• Neat & modern kitchen
• Large balcony
• Split system Air-Conditioning
• Established reticulated gardens
• Secure single garage
• Close to Schools, Parks, Shops & Transport

On the doorstep of everything that’s good about Claremont, comfort and proximity to amenities are the hallmarks of this property. With all the benefits of a multi-million-dollar location at a fraction of the price, live the enviable lifestyle on Freshwater Bay and you will rarely need to use your car again.

Strata Fees –
Admin: $1,020.83 p.q.
Reserve: $93.75 p.q.

Home Opens

There are no home opens scheduled at this time Contact us for a private inspection

    Claremont

    10 minutes from the CBD, 5 from the sea, this leafy suburb is known for its eclectic shopping and fine dining.

    View Suburb Profile

    Floorplan

    Property details

    Building Area: 86m²

    Download Floorplan

    Contact the agent

    Get more information about this property

      Callback Open Times Brochure Info Via Email