Sold $520,000
View Photos

Beautiful Ground Floor Apartment in a Prime Location

4/34 Davies Road, CLAREMONT WA 6010

211

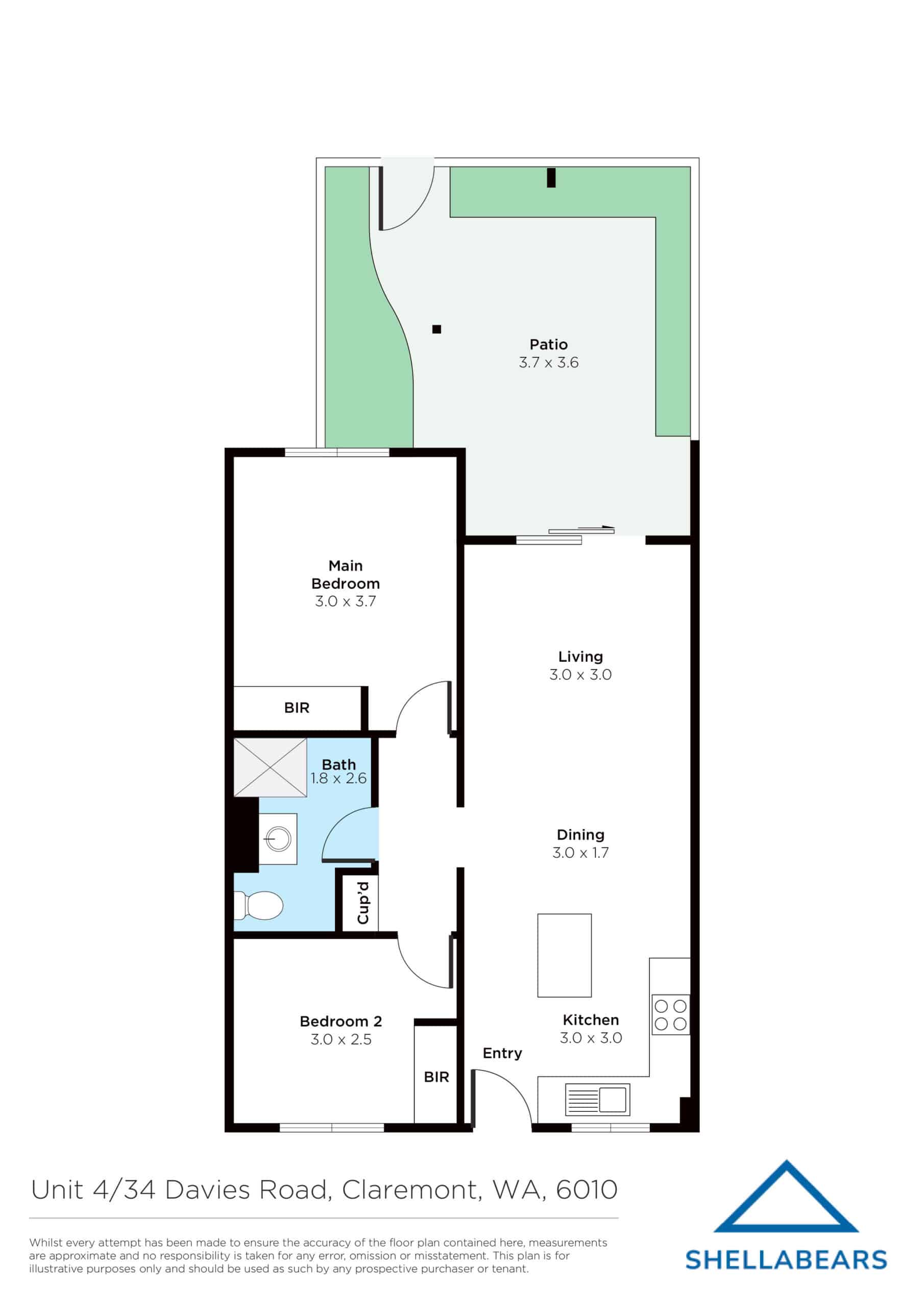
This peaceful two-bedroom, one-bathroom apartment features a private courtyard overlooking a serene, lush green grass area. Both bedrooms come with built-in wardrobes, complete with floor-to-ceiling mirrors. The master bedroom is north-facing, offering morning sunlight.

Perfectly positioned, this property is just a short distance from Claremont Quarter and shops, with direct access to Lake Claremont, the Teebox Café and Lake Claremont Golf Course. You’ll also find a local IGA and the train station nearby, offering easy access to both the Perth CBD and Fremantle.

Ideal for first-time homebuyers, downsizers, those seeking a convenient city base, or investors, this property offers versatile living options.

Additional features include a single undercover car bay, ample visitor parking, locked doors to the complex with security cameras and a communal laundry on each floor for your convenience.

With proximity to public transport, parks, Claremont Quarter and beautiful beaches, this apartment truly offers a lifestyle of comfort and convenience, be sure to view this property.

Features:
Ground floor with a large courtyard overlooking the grass
Two-bedroom with built in ceiling to floor mirror robes
North facing
Freshly painted
Close to Claremont amenities and public transport
Gate access to Lake Claremont

For more information contact; Rachel Cann 0419 918 929

Rates (approximate):
Strata Admin Levy: $551.95 pq
Strata Reserve Levy: $117 pq
Council Rates: $1692 pa
Water Rates: $860 pa

3D Tour

Home Opens

There are no home opens scheduled at this time Contact us for a private inspection

    Claremont

    10 minutes from the CBD, 5 from the sea, this leafy suburb is known for its eclectic shopping and fine dining.

    View Suburb Profile

    Floorplan

    Property details

    Download Floorplan

    Contact the agent

    Get more information about this property

      Callback Open Times Brochure Info Via Email