Sold
View Photos

The Secret Garden

2/9-11 Wingfield Avenue, CRAWLEY WA 6009

322

Our Homes Remain Open – Private Viewings by Appointment.

MOTIVATED SELLER – ALL OFFERS PRESENTED

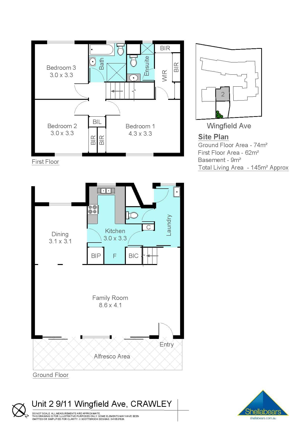
Set amongst luxury multi-million-dollar apartments on a picturesque tree-lined street on the Kings Park side of Crawley, sits this 3-bedroom 2-bathroom townhouse.

From the moment you enter through the classic wrought iron gate, you will be greeted with an enormous private courtyard area all for your exclusive use! This size outdoor space is very rare for strata living.

As you enter the home itself, you will be welcomed into a massive living area with plenty of room and flexibility for both living and dining, or if you wish to keep the dining area separate, there is an additional area next to the kitchen for that too.

Other features include:
– Functional kitchen with plenty of storage and induction cooktop;
– 3 bedrooms including spacious Master Bedroom with built in robe and walk in robe;
– 2 renovated bathrooms plus additional downstairs powder room and laundry;
– 2 side-by-side car bays in secure basement plus large storeroom;
– Prime location with street frontage within the beautifully maintained complex of only 8.

You get the best of both worlds with this property, as its homely facade makes it feel like a house, but with the security of a lock-and-leave that a strata complex provides – making it not only ideal for couples or young families, but also for downsizers who are not quite ready for apartment living.

Only a short stroll to Matilda Bay, restaurants/cafes, UWA and Kings Park as well as being a 5-10-minute drive to various Hospitals and Perth City.

Take advantage of the opportunity to live in this exquisite location! – call Rachel Winning today to arrange your private viewing.

Video

Home Opens

There are no home opens scheduled at this time Contact us for a private inspection

    Floorplan

    Property details

    Building Area: 145m²

    Download Floorplan

    Contact the agent

    Get more information about this property

      Callback Open Times Brochure Info Via Email