Sold $470,000
View Photos

SECOND CHANCE - Marina Life!

32/33 Spinnaker Boulevard, GEOGRAPHE WA 6280

222

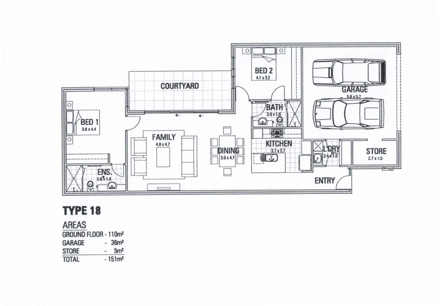
Live the Port Geographe lifestyle in this beautifully-appointed, two bedroom, two bathroom, secure villa situated in the idyllic 33 Spinnaker Boulevard group.

Conveniently located within walking distance to the Geographe Bay beaches, the canal inland beach and The Deck Bar and Restaurant for a beautiful meal overlooking the Marina, it doesn’t get much better!

Prior to the build commencing, the current owner upgraded many features including under floor heating throughout the living area for extra winter comfort, floor to ceiling tiles in the bathroom and recessed ceilings for an extra feeling of space throughout.

The villas East-West orientation means the courtyard is bathed in northern light which fills the living area through the full-length windows and sliding door, for natural winter warmth. Conversely, If the gentle breeze off the marina doesn’t cool you down during warm summer days there is reverse cycle air conditioning in both the living area and Master Suite.

Currently tenanted until July 2022 so inspections are by appointment only.

Property features
– Single level
– Open Plan
– Generously sized master bedroom with ensuite and built-in robes
– Northern aspect courtyard
– Double garage
– Reverse Cycle Air conditioning
– Double Garage & storeroom

In such a strong market these opportunities don’t last long! For further information, or to arrange an inspection, contact Kingsley Edwards on 0412 90 90 22

Home Opens

There are no home opens scheduled at this time Contact us for a private inspection

    Floorplan

    Property details

    201m²

    Building Area: 110m²

    Download Floorplan

    Contact the agent

    Get more information about this property

      Callback Open Times Brochure Info Via Email