Sold $1,230,000
View Photos

KEANE'S POINT - AFFORDABLE RIVERFRONT APARTMENT

1/1 Johnson Parade, MOSMAN PARK WA 6012

212

AUCTION 2:00PM, SATURDAY 28 MAY 2016 ONSITE

This is your opportunity to secure a rare ground floor apartment opposite the river, yacht club, and Manners Hill Park.

This apartment is positioned in a small private group of only 6 in one of the most stunning locations you will find anywhere in Perth. The home itself is light and bright and open to the views in all directions – especially to the river.

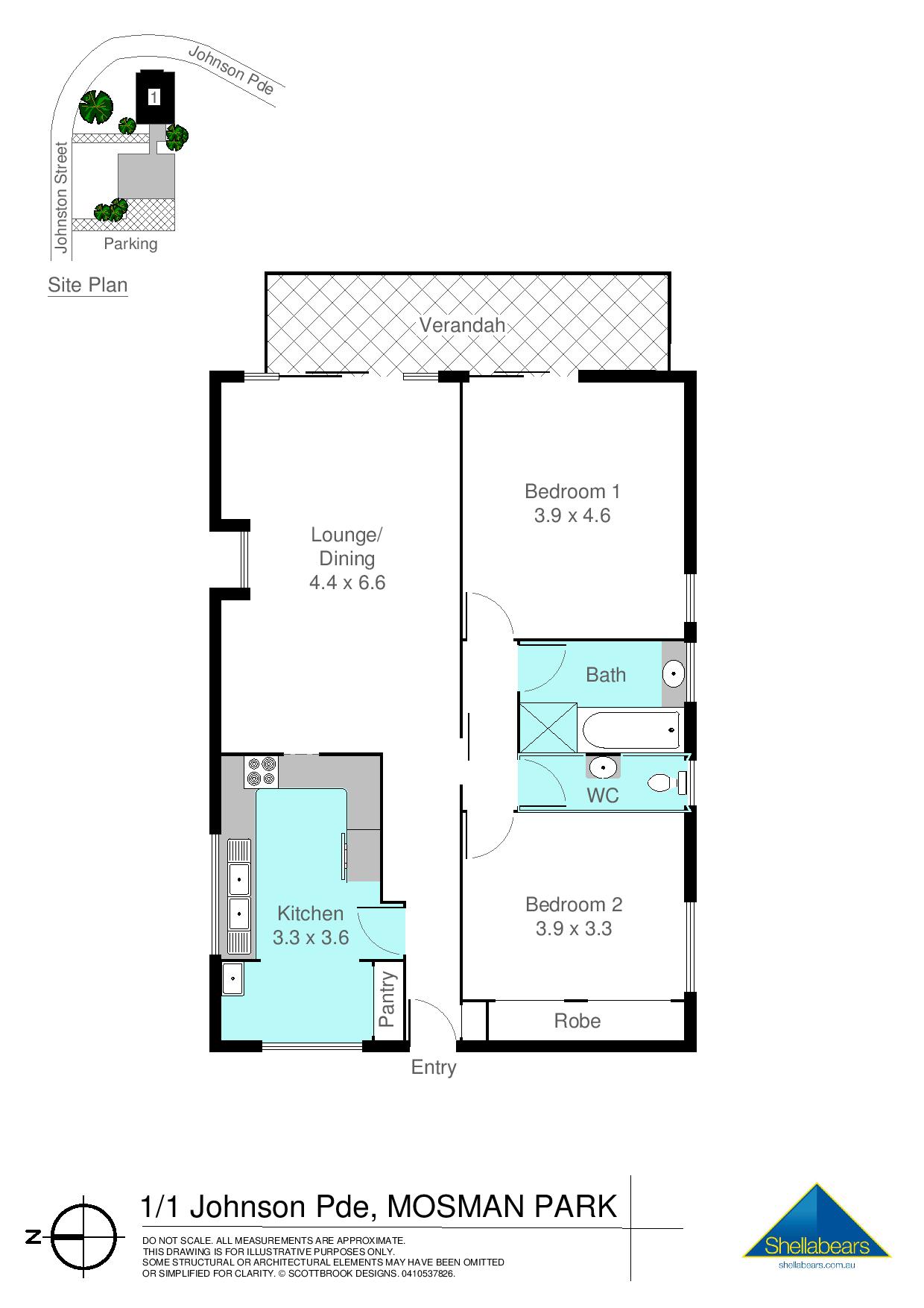
Accommodation consists of 2 very good sized bedrooms, bathroom and the large living area opens to a private balcony.

Additionally, there is 2 undercover parking bays underneath the building with lift access to your home.

This is superb riverfront living, and will be sold at auction.

Come along for a viewing experience – you will love it!

Video

Home Opens

There are no home opens scheduled at this time Contact us for a private inspection

    Mosman Park

    Mosman Park is bound by the Indian Ocean to the west, and the Swan River to the east and south.

    View Suburb Profile

    Floorplan

    Property details

    Building Area: 122m²

    Download Floorplan

    Contact the agent

    Get more information about this property

      Callback Open Times Brochure Info Via Email