NOW AVAILABLE!
View Photos

Classic Luxury Home on Green Title Block South of the Highway Nedlands

20 Doonan Road, NEDLANDS WA 6009

322

This is what you have been waiting for! A classic, quality-built home on your own piece of land with street frontage, where you can live a low-maintenance lifestyle and still feel connected to the street and the neighbouring community.

Development Approval has been granted. The Titles have been issued. Building is about to begin. The price is locked-in. This opportunity is not somewhere down the track. This opportunity is now.

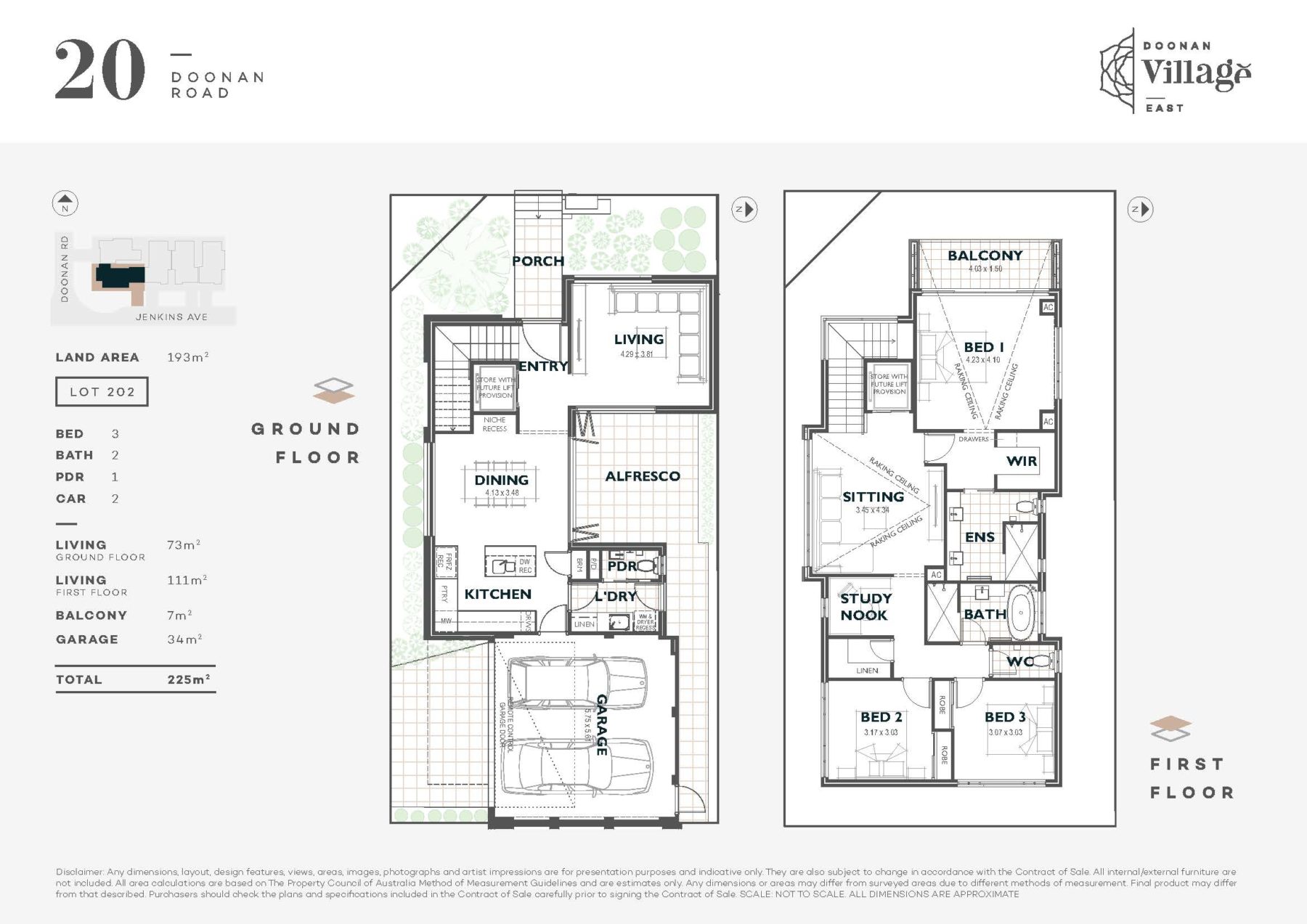
This stunning property has been carefully curated to offer everything you seek in a low-maintenance home. Open-plan living flowing on to an entertaining alfresco and courtyard garden. 2 separate living areas. Quality fixtures, fittings and appliances. A big beautiful Master suite with walk-in robe and ensuite, plus 2 other big bedrooms with robes. A double lock-up garage. Provision for a lift to be included now, or retro fitted later. A 192sqm green titled block with street frontage and its own individual address.

If a home on a big suburban block is too expensive, or too much work for you, and apartment living is not your style either, this is what has been missing in the Western Suburbs and now is the time to act.

Call Kate Gale to view the plans on 0411 406 774

Features;
• Walk to cafes, shops, parks and transport
• Construction commencing April 2021
• Open plan living
• 2 separate living areas
• Alfresco and outdoor entertaining
• Quality fixtures & fittings
• Spacious Master suite
• Ducted reverse-cycle air-conditioning
• Provision for a lift & solar power
• Courtyard garden
• Double garage
• 192sqm block
• Suitable for FIRB buyers

Home Opens

There are no home opens scheduled at this time Notify me of any changes    Contact us for a private inspection

    Nedlands

    Nedlands is a mix of old and new, where traditional values mix with modern tastes and lifestyles.

    View Suburb Profile

    Floorplan

    Property details

    193m²

    Building Area: 225m²

    Download Floorplan

    Contact the agent

    Get more information about this property

      Callback Open Times Brochure Info Via Email