Sold
View Photos

AUSTRALIAN CLASSIC

22 Pearse Street, NORTH FREMANTLE WA 6159

311

IDEAL LOCATION

Don’t miss this chance to be part of the vibrant Queen Victoria Precinct with an opportunity to purchase a cute cottage on a 365sqm block.

You can walk to the beach or coffee in the morning and to some of Perth’s trendiest restaurants for dinner. The North Fremantle train station is only a short stroll if you need to go further afield.

This is a super friendly street where neighbourly still means just that!

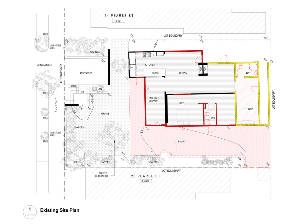
The home itself is set well back from the road and offers loads of flexibility and potential for future development. Accommodation consists of two or three bedrooms, 2 living areas and renovated kitchen with quality appliances.

A gorgeous ghost gum that captures the morning and evening light (with architect designed cubby house).

Features;
– 365sqm block
– High side of the road
– 2 or 3 bedrooms
– Renovated kitchen with high spec appliances
– Flexible floorplan
– 2 living areas
– Great outdoor spaces
– Incredibly friendly street

Home Opens

There are no home opens scheduled at this time Contact us for a private inspection

    North Fremantle

    From beachside apartments to mansions, stunning character homes and quaint townhouses, North Fremantle has it all!

    View Suburb Profile

    Floorplan

    Property details

    Download Floorplan

    Contact the agent

    Get more information about this property

      Callback Open Times Brochure Info Via Email