Leased
View Photos

MODERN, TASTEFUL, EXECUTIVE LIVING

77 Napier Street, COTTESLOE WA 6011

322

STUNNING FURNISHED TWO STOREY HOME!
Conveniently located minutes from the River and in the heart of Cottesloe. Bathed in natural sunlight.
This stunning home is perfect for your executive lifestyle, lock up and leave or simply stay and enjoy the stroll to Napoleon Street Restaurants / cafes or Claremont Fashion/Shopping district. Secure, private with easy care gardens.
Featuring:
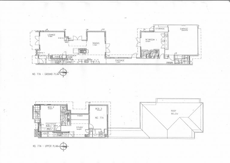
– Three spacious bedrooms,
– Master bedroom with private balcony
– Two superb bathrooms
– Chefs galley kitchen
– Large open planned, lounge / dining looking out to central courtyard
– polished wooden floorboards in living areas with carpeted bedrooms
– airconditioning
-security system

Time to change your lifestyle with time for the Beach! Perfect for Executive Living.

To view please contact the agent.

Home Opens

There are no home opens scheduled at this time Book Inspection

    Cottesloe

    Home of the beach goer, Cottesloe residents share a passion for the sun, sea and the surf and all things outdoors!

    View Suburb Profile

    Contact the agent

    Get more information about this property

      Callback Open Times Brochure Info Via Email